今天要分享的GPT 的識圖能力!!
吉卜力風格已經在網路上非常的熱鬧了
但更神奇的是可以用平面圖直接長出室內透視...還可以指定風格,準確率高?......以後提案就靠它了?~~
別人的測試-1
https://www.facebook.com/share/p/1EVhLU9vK4/?mibextid=wwXIfr
別人的測試-2
https://www.facebook.com/groups/gaitech/permalink/1356189092231969/?rdid=qf0lWxbUwTFtUqgQ#
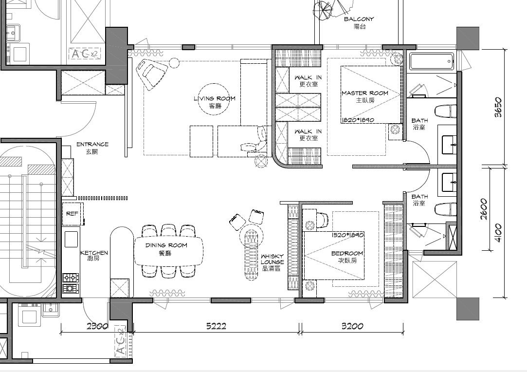
附圖是我們的"翻車"測試
目前大致上看的出來空間感雷同...風格可以用圖片控制
與平面的精準度--60%
與風格的精準度--80%
生成圖像之間風格的一致性--95%
對於空間尺度的拿捏---50%
生成圖像速度的滿意度--50%
入手困難度--0%
總之~出張嘴應該都可以搞得出來
另外GPT跟MJ都會有個性化的功能,簡單說就是多跟它聊天叫他出圖,它會越來越懂你喜好~~

上圖為GPT生成的圖像

上圖為GPT生成的圖像

上圖為提交GPT的平面圖

上圖為風格參考圖~圖像來源為:pinterest

